hướng dẫn sử dụng khoá cổng
axl-064 / axl-065

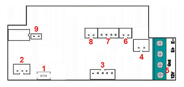
Để có thể cài đặt khoá ta cần lắp đặt đúng sơ đồ và cấp nguồn 4 Pin AA hoặc DC 12V

1. Nút cài đặt thẻ quản lý/tay cài đặt
2. Cổng kết nối cảm biến từ
3. Kết nối motor
4. Kết nối Pin
5. Kết nối nguồn DC12V
6. Kết nối chuông báo
7. Kết nối mặt khoá ngoài
8. Kết nối mặt khoá trong
9. Reset khoá về mặc định

Sơ đồ bo mạch khoá cổng AXL-064/065

1. THAY ĐỔI QUYỀN QUẢN LÝ (mật khẩu mặc định [6666]

1.1. Thay mật khẩu quản lý: Nhập trên tay cài đặt [*] [mật khẩu quản lý] [#] đèn chuyển sang màu đỏ [18] [#] [mật khẩu mới] [#] [mật khẩu mới] [#] 3 tiếng bíp ngắn (Mật khẩu quản lý gồm 4 ~ 8 ký tự) nhấn [*] để thoát khỏi chế độ cài đặt hoặc sẽ tự động thoát trong vòng 15 giây.
1.2. Thay thẻ quản lý mới: Mở nắp thân khóa, nhấn nút (1) trên bo mạch. Khi đèn LED nhấp nháy màu đỏ quét thẻ mới vào để tạo thẻ quản lý, ba tiếng bep ngắn là thành công.
1.3. Thay thế tay cài đặt mới: Mở nắp thân khóa, nhấn nút (1) trên bo mạch. Khi đèn LED nhấp nháy màu đỏ nhấn nút bất kỳ trên tay cài đặt mới để tạo thẻ quản lý, ba tiếng bep ngắn là thành công.

2. CÀI ĐẶT THẺ CẢM ỨNG NGƯỜI DÙNG

Trước khi nhập thẻ cảm ứng người dùng, người quản trị thiết bị phải ghi lại ID từng thẻ cảm ứng và thông tin người dùng tương ứng để tiện theo dõi hoặc hủy thẻ trong quá trình sử dụng. Có 3 cách nhập thẻ mới.
2.1. Cài đặt nhanh: Nhập trên tay cài đặt [*] [mật khẩu quản lý] [#] [1] [#] đèn xanh và đỏ, quét thẻ mới vào đầu dò, 3 tiếng bíp là thành công
2.2. Cài đặt bằng ID: Nhập trên tay cài đặt [*] [mật khẩu quản lý] [#] [2] [#] đèn xanh và đỏ [nhập 10 số ID trên thẻ] [#] 3 tiếng bíp là thành công
2.3. Cài đặt bằng thẻ quản lý: Quét thẻ quản lý 1 lần (đèn xanh nháy nhanh) → quét thẻ mới → Quét thẻ quản lý 1 lần để thoát

Lưu ý: Bạn có thể thêm liên tục nhiều thẻ, 3 tiếng bíp ngắn là thành công / 1 tiếng bíp dài là không thành công.

3. XÓA THẺ NGƯỜI DÙNG

Có 4 cách để xóa thẻ người dùng: Xóa bằng thẻ / Xóa bằng ID / Xóa toàn bộ thẻ / Xóa bằng thẻ quản lý:
3.1. Xóa từng thẻ: Nhập trên tay cài đặt [*] [mật khẩu quản lý] [#] [3] [#] đèn xanh và đỏ [đưa từng thẻ muốn xóa vào đầu dò]3.2. Xóa ID thẻ: Nhập trên tay cài đặt [*] [mật khẩu quản lý] [#] [4] [#] [nhập số ID thẻ muốn xóa] [#] tiếng kêu bíp ngắn là thành công.
3.3. Xóa toàn bộ thẻ: Nhập trên tay cài đặt [*] [mật khẩu quản lý] [#] [90] [#] [90] [#] 3 tiếng bíp ngắn là thành công
3.4. Xóa bằng thẻ quản lý: Quét thẻ quản lý 2 lần (đèn đỏ) → quét thẻ muốn xóa → Quét thẻ quản lý 1 lần để thoá

4. THÊM MỚI ĐIỀU KHIỂN TỪ XA (AXL-065)

[*] [mật khẩu quản lý] [#] [6] [#] [nhấn nút điều khiển từ xa] nghe 2 tiếng bíp [nhập 3 ký tự quản lý (từ 001~999)] [#] 3 tiếng bíp ngắn là thành công / 1 tiếng bíp dài là không thành công

5. XÓA ĐIỀU KHIỂN TỪ XA (AXL-065)

5.1. Xóa từng điều khiển từ xa: [*] [mật khẩu quản lý] [#] [8] [#] đèn led xanh đỏ [nhập 3 ký tự mã điều khiển từ xa] [#] 3 tiếng bíp ngắn là thành công / 1 tiếng bíp dài là không thành công.
5.2. Xóa toàn bộ điều khiển từ xa: [*] [mật khẩu quản lý] [#] [91] [#] [91] [#] 3 tiếng bíp ngắn là thành công / 1 tiếng bíp dài là không thành công.

6. RESET KHOÁ VỀ MẶC ĐỊNH

Mở nắp thân khóa, nối tiếp điểm (9) trong 5 giây, sau khi kêu 3 âm bep dài, khoá đã khôi phục mặc định ban đầu. Cài đặt này sẽ không xoá các cài đặt điều khiển từ xa và thẻ người dùng mà bạn đã thêm vào. Mật khẩu quản lý chuyển về mặc định là [6666]

VIDEO HƯỚNG DẪN LẮP ĐẶT KHOÁ CỔNG

Giỏ hàng
add_action('wp_footer', function () { echo ''; });